Mathematical Prison Escape: Create challenge where prisoner has to use geo/trig to escape

I'm wondering if you could make a diagram of the prison, fences, guard towers, etc. with dimensions labeled (but maybe not to scale, just a sketch), and they have to figure out how much space there is where an escapee could not be seen.
 
I Think i will try to design it so that he doesn't know exactly at wich point the sewers intercects his cell, an thus must make a spiral, as your original problem with the ant.
 
Beer induced recall/reaction follows.
Hello,
Recentely i started teaching Math at a local High-School, and noticed they really liked talking about crime-related topics, so in order to motivate them to study more i decided to make a challenge where a prisioner has to escape by using concepts of geometry and trigonometry, as well as analytic geometry, however i could not get anything out of my mind and would really appreciate if anyone has any ideas for a problem like this.
Thank you very much for the attention.
Interacted with some prison escape stuff a few months ago.
 
I like the whispering ellipse. Where do the prisoner and his friend have to take place so that they can exchange critical information without the guards hearing them?
 
I'm wondering if you could make a diagram of the prison, fences, guard towers, etc. with dimensions labeled (but maybe not to scale, just a sketch), and they have to figure out how much space there is where an escapee could not be seen.
Hello!
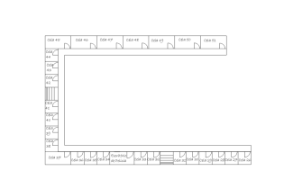
I am very sorry for the delay, i had already posted other sketch on this thread, however i tought it was very incomplete so i made another. I'll leave it attatched on this comment. These are the versions i've put on my students' final exam, that's why they're all in portuguese(I Live and lecture in Brazil). And if you're wondering, Deanil is the name of a famous gangster i decided to create within the problem so the escapee could have a way of comunicating with the world outside, you can ignore his existence completely if you wish. Thanks again very much for the help! i really love teaching and creating these problems make me feel more conected with my students!

(Yes, Deanil's name was supposed to be Daniel, however i made a typo and decided to keep it because i thought it was a funny name)
 

Attachments

  • SEGUNDO ANDAR BABY.png
    SEGUNDO ANDAR BABY.png
    51.9 KB · Views: 2
  • TERCEIRO ANDAAAAAAAAAAAAAAAAAAAAAAAAAAAAAAAAAAAAAR.png
    TERCEIRO ANDAAAAAAAAAAAAAAAAAAAAAAAAAAAAAAAAAAAAAR.png
    25.4 KB · Views: 2
  • PRIMEIRO ANDAR.png
    PRIMEIRO ANDAR.png
    97.3 KB · Views: 2
Top